都市ガス物件☆室内犬と暮らせるファミリータイプ♪
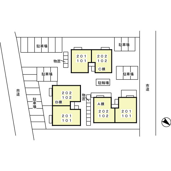
| 建物構造 | 軽鉄 地上2階 戸数4戸 (所在2階) | ||
|---|---|---|---|
| 取引様態 | 仲介 | 主要採光面 | 南東 |
| 築年月 | 2007年3月(築18年10ヶ月) | 坪単価 | |
| 現 況 | 契約更新 | 2年 更新料:76,000円(税込) | |
| 火災保険 | 要加入 | 入居可能日 | 2026年3月11日 |
| 学区(小) | 西白山台小学校 (約200m) | 学区(中) | 白山台中学校 (約850m) |
| トイレ | 独立 洋式 水洗(暖房便座有・洗浄機能有) | 風 呂 | 有り(シャワー有)追焚機能有 給湯式 |
| 設 備 | 洗面化粧台(シャワー付)/給湯(ガス)3箇所/上水道(公営)/下水道(下水)/ガス(都市ガス)/エアコン/FFストーブ/TV付インターホンあり/照明器具/電話配線設備/CATV/インターネット対応/インターネット無料/洗濯機置場/浴室乾燥機/システムキッチン/床下収納/シューズボックス/クローゼット/物置/バルコニー/駐輪場/防犯カメラ/全室洋室/宅配ボックス/室内物干し/専用ゴミ置場/ | ||
| 備 考 | 【現況優先】※室内で小型犬1匹のみ飼育可能(飼育時敷金1ヶ月増額) ※学区は目安です。正確な情報は役所に確認が必要です。 ※機関保証加入必須。初回保証料35000円、月額保証料賃料等総額の1%+800円/月(その他商品あり) ※65歳以上の方の契約は定期借家契約(2年再契約型)、機関保証の加入が必須となります(初回保証料:月額賃料等合計額×100%,更新:2万円/1年) ※本貸室の電気は、貸主から配給されます。 |
||
| 取扱業者 | 株式会社 松橋不動産 青森県知事免許(7)第2656号 〒039-1166 青森県八戸市根城9丁目4-1 TEL:0178-45-0793 FAX:0178-45-5908 (公社)全日本不動産協会会員 東北地区不動産公正取引協議会加盟事業者 |
||
|
|||


























敷地内(空あり)(無料)
2台目3,300円/月 [税込]